POLO DIREZIONALE DE CECCO
NUOVA SEDE FATER SPA - PESCARA

PROGETTO ARCHITETTONICO
ARCH. MASSIMILIANO FUKSAS

IMPRESA ESECUTRICE IM.A.R. SRL

PROGETTO STRUTTURE
ING. CLAUDIO TONIOLO






















----------------------------------------

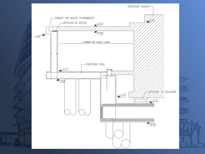
Seguono alcune slide tratte dalla relazione tecnica tenuta a Build UP Expo 2007
da Ing. C. Toniolo e Ing. P. Bertacchini

Per gentile concessione Studio Claudio Toniolo






















































































































































































































































































































































































































































































































































































































































































Per inviare un messaggio: hsh@iperv.it